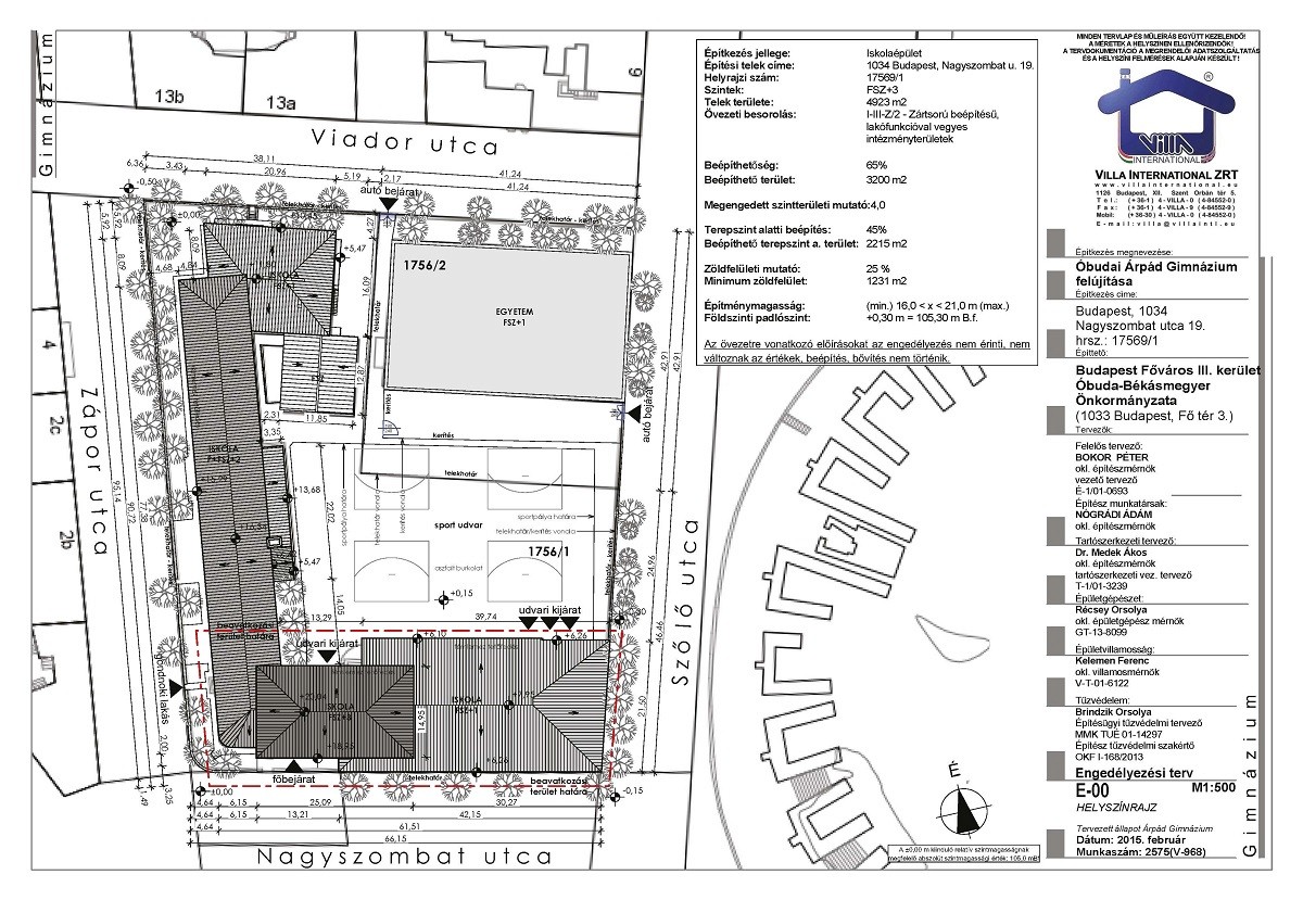
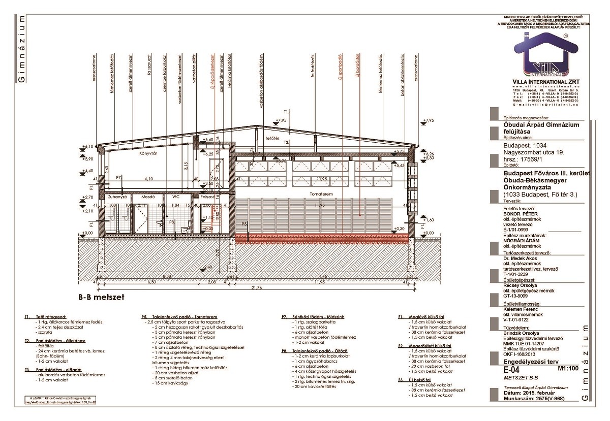
Budapest,Óbudai Árpád Gimnázium felújítása
Budapest,Óbudai Árpád Gimnázium felújítása
Budapest,Óbudai Árpád Gimnázium felújítása
Renovation of Árpád High School, Óbuda, Budapest



Kategória / Category:
megvalósult
/
completed
Jelleg / Type:
Felújítás
/
Renovation
Megbízó / Client:
Budapest Főváros III. Kerület Óbuda-Békásmegyek Önkormányzata
/
Helyszín / Location:
Budapest III. kerület
/
Budapest III. district
Megbízás éve / Year:
2015










