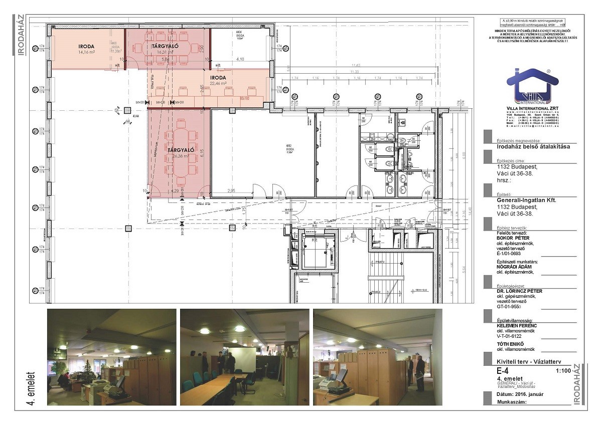
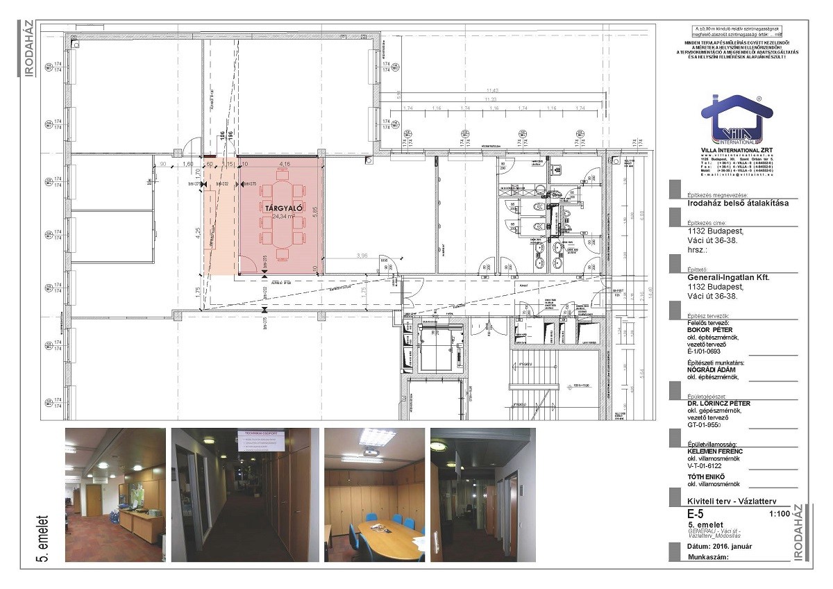
Generali Biztosító Zrt. székházának belső átalakítása
Generali Biztosító Zrt. székházának belső átalakítása
Generali Biztosító Zrt. székházának belső átalakítása
Interior conversion of the Generali Insurance Ltd. headquarters



Kategória / Category:
terv
/
plan
Jelleg / Type:
Felújítás
/
Renovation
Megbízó / Client:
Generali Biztosító Zrt.
/
Helyszín / Location:
Budapest XIII. kerület
/
Budapest XIII. district
Megbízás éve / Year:
2016











