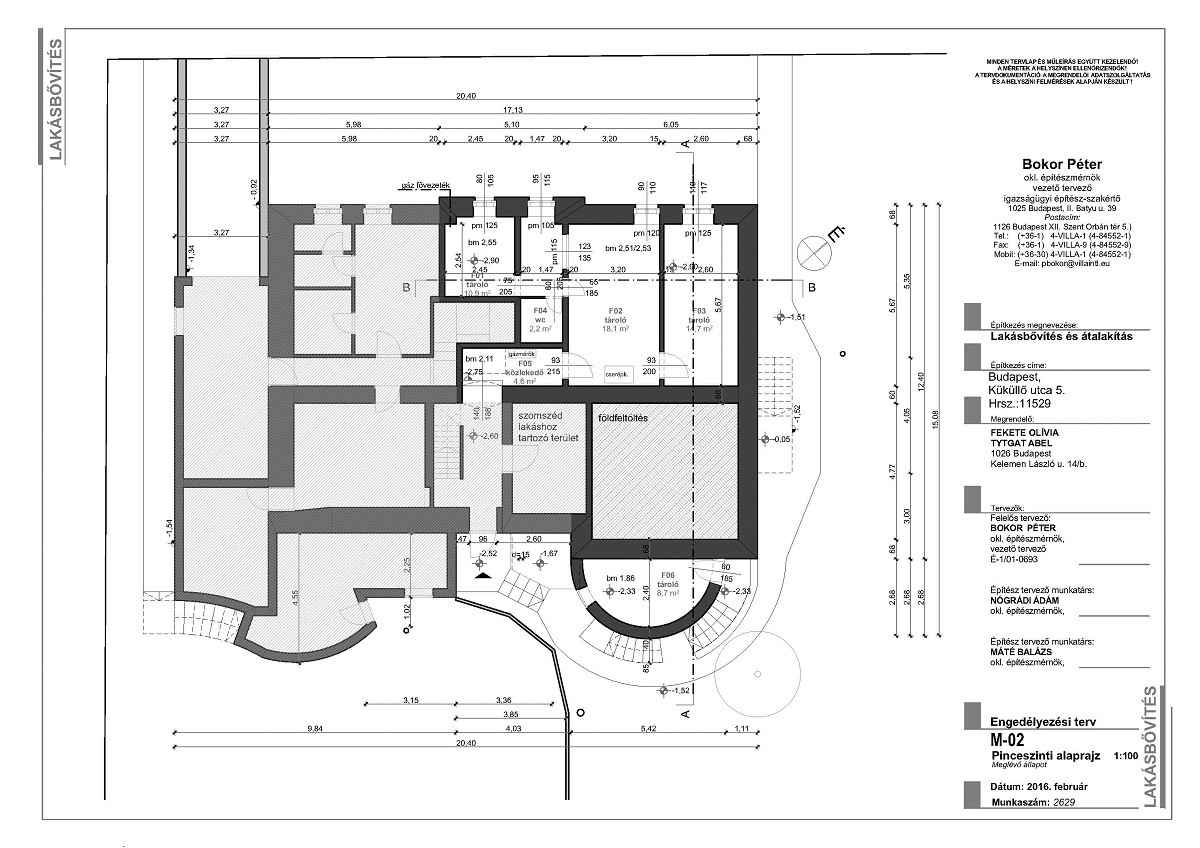
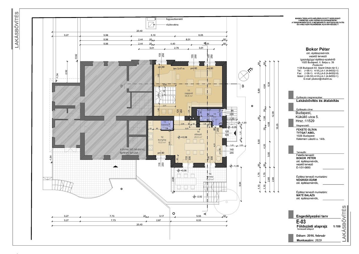
Családi ház átalakítása, homlokzati nyílászáróinak cseréje
Conversion of a family house, replacement of its facade openings
Kategória / Category:
megvalósult
/
completed
Jelleg / Type:
Új épület
/
New building
Megbízó / Client:
Fekete Olívia, Tytgat Abel
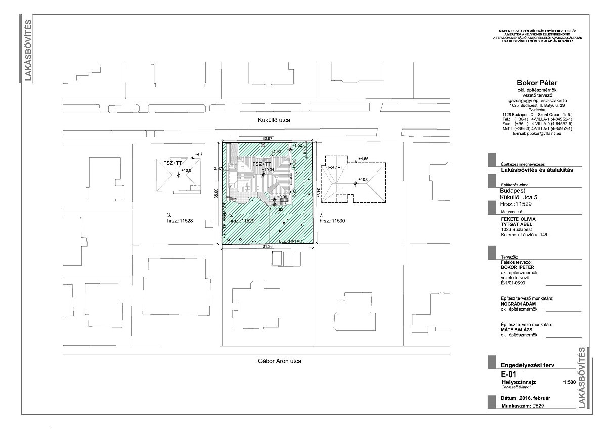
Helyszín / Location:
Budapest II. kerület
/
Budapest II. district
Megbízás éve / Year:
2016










